Bem-vindo.

Rio 2016 Bid - Deodoro Cluster

O escritório foi responsável pela concepção dos estudos preliminares (arquitetura e paisagismo) da maioria das edificações que precisariam ser construídas e ampliadas, trabalhando em conjunto com a equipe Rio 2016 e a consultoria internacional EKS/JBD (responsáveis pelos projetos operacionais e overlay). Os trabalhos atenderam a todas as exigências necessárias para o perfeito funcionamento das Olimpíadas, a partir dos pré-requisitos determinados pelo COI e das estratégias definidas pelo COB, em articulação com os três níveis de Governo (Prefeitura, Estado e União). A BCMF foi responsável pela arquitetura de 17 novas instalações permanentes e pela complementação de 3 instalações existentes, atuando principalmente nas regiões da Barra da Tijuca e de Deodoro (Zona Norte do Rio) — área onde o escritório já havia desenvolvido o projeto do Complexo Esportivo de Deodoro para o Pan 2007. Além disso, o escritório também deu suporte à equipe Rio 2016 no desenvolvimento de instalações temporárias especiais e foi responsável pela maioria das imagens do Dossiê. Conforme definido pelo COB (Comitê Olímpico Brasileiro), em conjunto com os diversos níveis de Governo, as instalações para as Olimpíadas de 2016 foram agrupadas em quatro grandes zonas distintas da cidade: Barra, Copacabana, Maracanã e Deodoro. Esses “clusters” seriam interligados por um eficiente sistema de transporte viário e ferroviário de alta performance. Essa estratégia teve como objetivo distribuir os benefícios diretos e indiretos dos Jogos entre todos os habitantes do Rio de Janeiro, por meio da construção de novas instalações e de melhorias apoiadas em uma rede de infraestrutura existente. Enquanto o cluster de Copacabana receberia principalmente a montagem de estruturas temporárias, os clusters de Deodoro e Maracanã teriam suas instalações existentes complementadas, e a Barra da Tijuca concentraria a maioria das novas instalações, a serem construídas ou adaptadas.

CLUSTER DE DEODORO

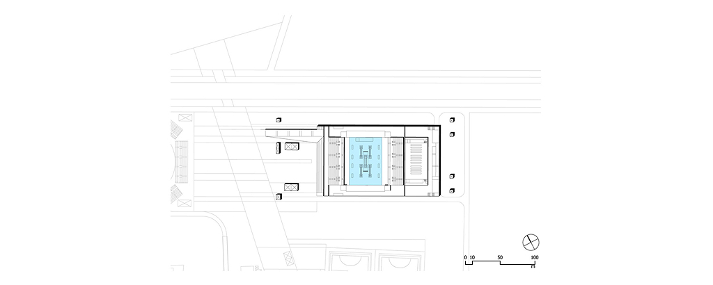
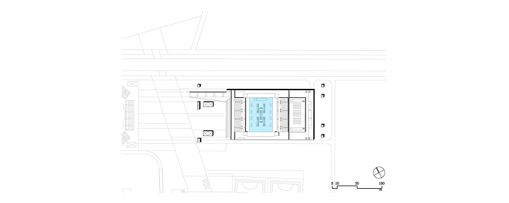
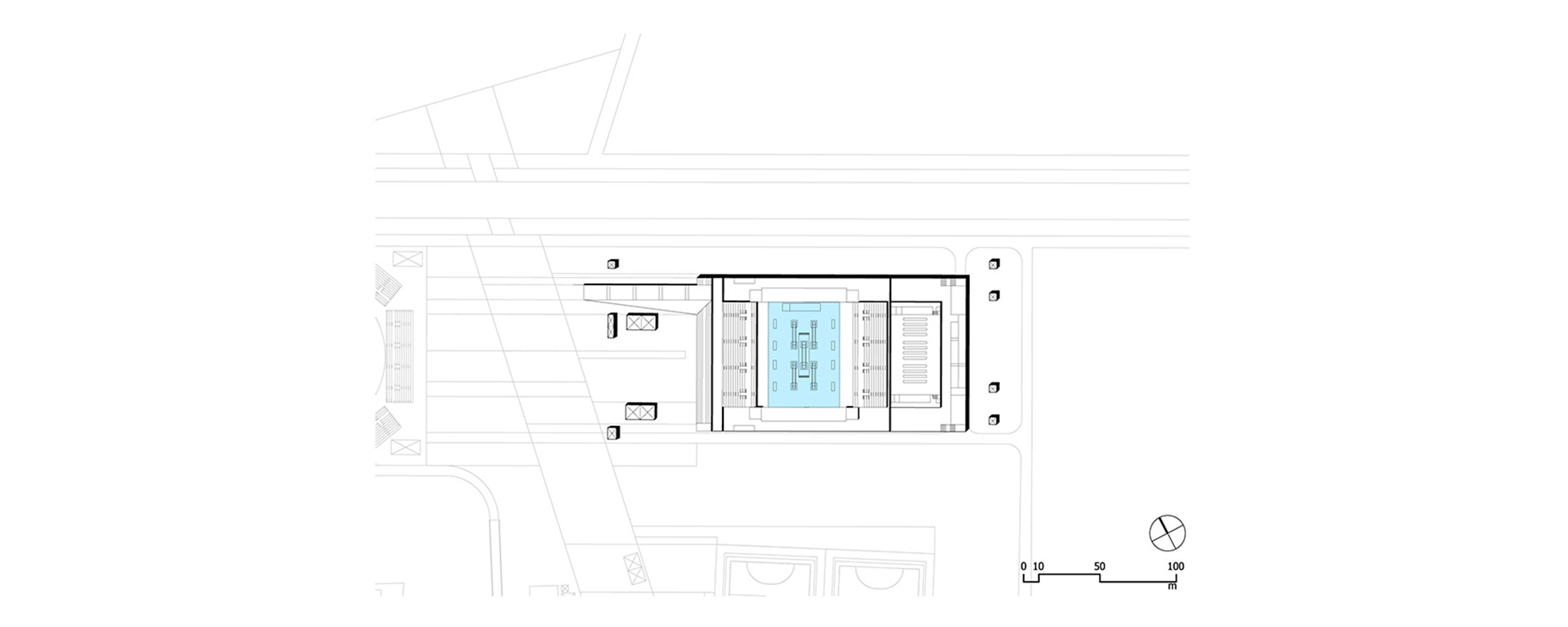
No Cluster de Deodoro, fomos responsáveis pelo projeto do X-Parque (XPR), um Parque de Esportes Radicais que inclui o Centro Olímpico de Ciclismo (BMX), o Centro Olímpico de Canoagem/Caiaque Slalom (CAN) e o Centro Olímpico de Mountain Bike (MBK). O Centro Nacional de Tiro Esportivo (NSC), o Centro Nacional de Hipismo (NEC) e o Centro Nacional de Pentatlo Moderno (MNP) — equipamentos existentes, já projetados por nós para os Jogos Pan-Americanos de 2007, de acordo com padrões internacionais e olímpicos — já possuíam sua ampliação planejada, necessitando apenas de ajustes e complementos, como o projeto de uma nova instalação para a Esgrima (Arena de Deodoro – MNP) e algumas instalações temporárias.

O X-Parque (XPR) constitui uma nova atração para o Complexo Esportivo de Deodoro (CED), acoplado a um novo clube esportivo destinado a atender à demanda da comunidade local, incluindo Bangu, Realengo e Vila Militar. Implantado ao norte do Centro de Tiro Esportivo, o X-Parque foi concebido a partir da topografia acidentada e da vegetação existente, integrando-se de forma orgânica à paisagem local. Uma sequência de morros e vales definiu a setorização do complexo, cujas instalações são conectadas por caminhos tratados paisagisticamente e articulados com o entorno.

O circuito de Mountain Bike (MBK) foi mapeado de acordo com as curvas de nível do terreno e as matas nativas, tendo seu percurso complementado por paisagismo com espécies locais e exóticas. O Centro de Canoagem/Caiaque Slalom (CAN) também se implanta entre conjuntos de morros, com seu percurso de whitewater integrado a uma lagoa artificial. Já o Centro de BMX possui parte de suas arquibancadas assentadas nas encostas de um desaterro alargado, reduzindo o impacto das estruturas permanentes, enquanto as demais instalações temporárias são implantadas diretamente sobre o terreno.

O X-Parque conecta-se ao Centro Nacional de Tiro Esportivo (NSC) por meio de um percurso que se estende até uma travessia sob a Avenida Brasil, dando continuidade ao boulevard do Centro Nacional de Pentatlo Moderno (MNP). A Arena de Deodoro (MNP) abrigará as provas de Esgrima e, no período pós-Jogos, permanecerá como um ginásio poliesportivo, integrado ao Clube Militar. Seu desenho segue a mesma linguagem arquitetônica e os princípios construtivos adotados nos projetos do Complexo Esportivo de Deodoro para os Jogos Pan-Americanos de 2007. As demais instalações, como arquibancadas, são temporárias, enquanto a piscina existente e o novo campo equestre permanecem como parte do legado do Centro de Treinamento.

O Complexo Esportivo da Vila Militar de Deodoro foi originalmente projetado para os Jogos Pan-Americanos de 2007 já considerando seu legado, prevendo que um programa destinado a competições similares pudesse ser aplicado também aos Jogos Olímpicos e Paraolímpicos de 2016. Nesse contexto, o cluster concentra modalidades como Tiro Esportivo, Hipismo, Tiro com Arco, Hóquei sobre Grama e Pentatlo Moderno, mantendo grande parte de seus equipamentos esportivos e de apoio como áreas permanentes de treinamento para competições regionais, nacionais e internacionais. Dessa forma, o NSC, o NEC e a piscina do MNP já atendem aos padrões internacionais, necessitando apenas de pequenos ajustes e complementações.

O complexo configura-se, assim, como um importante legado do Pan 2007, reunindo equipamentos e infraestrutura que vêm estimulando o desenvolvimento de um relevante vetor de crescimento urbano. O projeto enfrenta as complexas condições de um contexto suburbano singular, no qual coexistem um bairro militar planejado, áreas de alta densidade urbana, zonas industriais inseridas em bairros de classe média e uma extensa paisagem natural. Com as novas instalações e a melhoria da infraestrutura existente, o Complexo Esportivo de Deodoro consolida-se como um legado de excelência para a prática de esportes de alta performance, incentivando o uso pela população local e apresentando forte potencial de catalisar a revitalização urbana de uma área significativa da cidade.

Rio 2016 BID - Deodoro Cluster Projeto Arquitetônico Executivo

Cliente: Comitê de Candidatura RIO 2016
Projeto: Rio 2016 Bid
Estudos Conceituais Candidatura Rio 2016
Ano: 2008-2009
Localização: Rio de Janeiro, Rj
Arquitetura e Paisagismo:  BCMF Arquitetos: Bruno Campos, Marcelo Fontes e Sílvio Todeschi (Arquitetura), com Carlos Teixeira (Paisagismo)
Equipe: Patrícia Bueno, Leonardo Rodrigues, Mateus Hermeto, Carolina Eboli e Sean Mc Neary
Créditos: Rio 2016 / BCMF Arquitetos
Gerenciamento e Coordenação Geral:  Comitê de Candidatura RIO 2016 / Alexandre Techima (Diretor de Infra-estrutura), Elly Resende (Gerente Geral), Ângela Ferreira (Gerente de Planejamento Arquitetônico) e Rodrigo Garcia (Gerente de Planejamento Operacional) Consultor Internacional EKS/John Baker
Masterplans Operacionais e Projetos de Instalações Temporárias: (Overlay) EKS/ John Baker e Equipe Rio 2016 (Ângela Ferreira, Ana Paula Loreto, Bárbara Fernandes, Flavia São Thiago, Izabela Hasek, Miguel Ciavarella e Patrícia Dias)
Produção Gráfica:  (Coordenação BCMF)
Renderização: Casa Digital (Felipe Coutinho e equipe)
Arte Final:  Matiz (Fernando Coutinho e equipe)
Modelos 3D: (Sketch-up) Equipe B – Fernando Pacheco do Nascimento e Leandro do Santos Magalhães e equipe (Fernanda Albert Saliba, Francielle Evelyn Mendes Gomes e Luisa Soares da Cunha Guimarães)
Infografia: (Coordenação Rio2016) André Maya Monteiro, Luiza Kramer e Daniel Bokelman
Maquetes:  Adhemir Fogassa Maquetes
Status: Construído

Esse site usa cookies para fornecer a funcionalidade necessária do site, melhorar sua experiência e analisar nosso tráfego.

Saiba mais