Bem-vindo.

Rio 2016 Bid - Barra Cluster

O escritório foi responsável pela concepção dos estudos preliminares (arquitetura e paisagismo) da maioria das edificações que precisariam ser construídas e ampliadas, trabalhando em conjunto com a equipe Rio 2016 e a consultoria internacional EKS/JBD (responsáveis pelos projetos operacionais e overlay). Os trabalhos atenderam a todas as exigências necessárias para o perfeito funcionamento das Olimpíadas, a partir dos pré-requisitos determinados pelo COI e das estratégias definidas pelo COB, em articulação com os três níveis de Governo (Prefeitura, Estado e União). A BCMF foi responsável pela arquitetura de 17 novas instalações permanentes e pela complementação de 3 instalações existentes, atuando principalmente nas regiões da Barra da Tijuca e de Deodoro (Zona Norte do Rio) — área onde o escritório já havia desenvolvido o projeto do Complexo Esportivo de Deodoro para o Pan 2007. Além disso, o escritório também deu suporte à equipe Rio 2016 no desenvolvimento de instalações temporárias especiais e foi responsável pela maioria das imagens do Dossiê. Conforme definido pelo COB (Comitê Olímpico Brasileiro), em conjunto com os diversos níveis de Governo, as instalações para as Olimpíadas de 2016 foram agrupadas em quatro grandes zonas distintas da cidade: Barra, Copacabana, Maracanã e Deodoro. Esses “clusters” seriam interligados por um eficiente sistema de transporte viário e ferroviário de alta performance. Essa estratégia teve como objetivo distribuir os benefícios diretos e indiretos dos Jogos entre todos os habitantes do Rio de Janeiro, por meio da construção de novas instalações e de melhorias apoiadas em uma rede de infraestrutura existente. Enquanto o cluster de Copacabana receberia principalmente a montagem de estruturas temporárias, os clusters de Deodoro e Maracanã teriam suas instalações existentes complementadas, e a Barra da Tijuca concentraria a maioria das novas instalações, a serem construídas ou adaptadas.

CLUSTER BARRA
Parque Olímpico do Rio (OLP): “Paisagismo 3D”

O Parque Olímpico do Rio (OLP) foi planejado em um terreno triangular de aproximadamente 1.000.000 m², com localização privilegiada na Barra da Tijuca, às margens da Lagoa de Marapendi, tendo sua base junto à Av. Abelardo Bueno. Atualmente, a área abriga o Autódromo de Jacarepaguá, além da Arena Olímpica (ROA), do Centro Aquático Maria Lenk (AQC) e do Velódromo Olímpico do Rio (ROV), instalações construídas para os Jogos Pan-Americanos de 2007.

O Parque Olímpico (OLP) concentrará instalações e apoios de 13 modalidades esportivas, devendo se transformar em um centro de treinamento e pesquisa de alta performance, atendendo atletas do Brasil e de toda a América Latina, configurando-se como um dos principais legados dos Jogos.

A ideia do Masterplan é tratar a implantação como um “Campus” ou “Parque”, onde as diversas instalações seriam conectadas e integradas por meio de um paisagismo intensivo, desenvolvido em todos os níveis. Conceitualmente, a estratégia buscou responder a três questões fundamentais:

  1. Como resolver a setorização e separação dos fluxos, especialmente entre credenciados (BOH) e público pagante (FOH), dentro do perímetro de segurança, garantindo acessos controlados, funcionalidade e o desejável espaço vazio ao redor das edificações?

  2. Como conectar as instalações, criando um Parque Esportivo e de Treinamento temático, viável como legado pós-Olimpíadas, simultaneamente espaço público aberto e centro de treinamento de alto nível?

  3. Como relacionar esse parque híbrido com a paisagem natural e urbana da Barra da Tijuca, uma região em constante expansão, marcada por grandes infraestruturas viárias, condomínios privados e escassez de espaços públicos tradicionais?

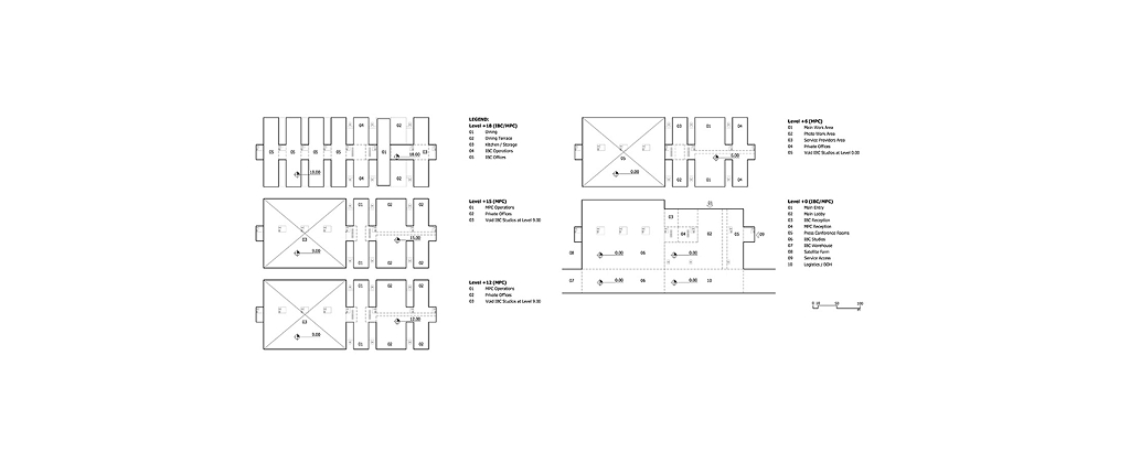
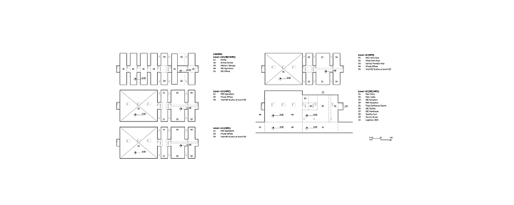
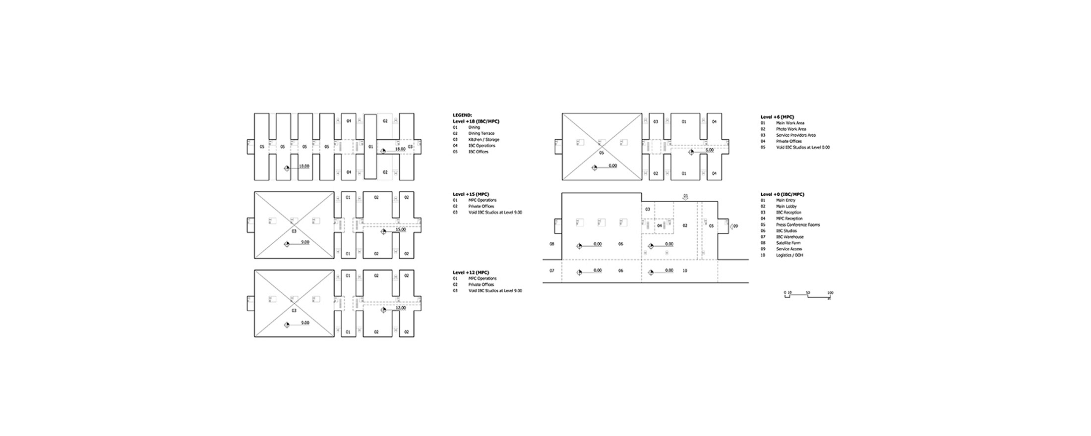
A ideia fundamental é um “Campus” organizado em dois níveis principais (0.00 e +6.00), estruturado por um sistema de circulação formado por duas longas passarelas ortogonais, associadas a praças e rampas, configurando uma série de plataformas suspensas que se estendem por todo o terreno — um verdadeiro “Paisagismo 3D”.

O nível térreo é reservado aos F.O.P. (campos de prova, áreas de competição e treinamento) e aos compounds operacionais. Já o nível superior, dedicado exclusivamente ao fluxo de pedestres e ao público, é estruturado por dois grandes eixos perpendiculares (Norte–Sul e Leste–Oeste), com 40 m de largura, conectando todas as instalações por meio de praças suspensas.

Sob esse paisagismo, mais programa: abaixo do grid suspenso, a área é organizada em dois níveis adicionais, permitindo flexibilidade espacial para os programas de Games Overlay. Essa solução promove uma separação total entre áreas BOH e FOH, realizada por meio de uma setorização vertical, em vez da setorização horizontal tradicional.

Essa estratégia de desnivelamento funcional mostra-se particularmente eficiente em eventos esportivos internacionais de grande porte, garantindo clareza operacional e criando uma imensa área pública exclusivamente pedonal, livre de interferências viárias e operacionais — uma verdadeira urbanização suspensa.

Os eixos principais de circulação estruturam o acesso do público e articulam todas as instalações. O eixo Leste–Oeste conecta o Terminal do BRT do Rio Centro, atravessa o parque longitudinalmente e culmina na grande praça central, coração do complexo. O eixo Norte–Sul articula acessos, instalações esportivas, áreas residenciais e se estende até a Lagoa de Marapendi, transformando-se em um deck/píer.

Dentro do Parque Olímpico (OLP), cada instalação possui uma arquitetura própria, mas baseada em princípios comuns, com volumes geométricos claros e modulação estrutural repetitiva (5x5 m), garantindo harmonia formal entre edifícios de diferentes escalas e usos.

Instalações como o Centro Olímpico de Natação (OAS), o Centro Olímpico Nacional de Treinamento (ITC), o Centro Olímpico de Hóquei (HTC), o Centro Olímpico de Tênis (TTC), o Velódromo Olímpico do Rio (ROV) e o IBC/MPC foram concebidas dentro dessa lógica sistêmica, conciliando impacto arquitetônico, flexibilidade funcional e adaptação ao legado pós-Jogos.

Grande parte das estruturas temporárias será desmontada após o evento, dando lugar a novos usos e consolidando o Centro Olímpico de Treinamento (OTC) como um legado urbano e esportivo duradouro para a cidade e o país.

Rio 2016 Bid - Barra Cluster Projeto Arquitetônico Executivo

Projeto: Rio 2016 Bid
Estudos Conceituais Candidatura Rio 2016
Localização: Rio de Janeiro, Rj
Ano: 2008-2009
Arquitetura e Paisagismo:  BCMF Arquitetos: Bruno Campos, Marcelo Fontes e Sílvio Todeschi (Arquitetura), com Carlos Teixeira (Paisagismo)
Equipe: Patrícia Bueno, Leonardo Rodrigues, Mateus Hermeto, Carolina Eboli e Sean Mc Neary
Créditos: Rio 2016 / BCMF Arquitetos
Cliente: Comitê de Candidatura RIO 2016
Gerenciamento e Coordenação Geral:  Comitê de Candidatura RIO 2016 / Alexandre Techima (Diretor de Infra-estrutura), Elly Resende (Gerente Geral), Ângela Ferreira (Gerente de Planejamento Arquitetônico) e Rodrigo Garcia (Gerente de Planejamento Operacional) Consultor Internacional EKS/John Baker
Masterplans Operacionais e Projetos de Instalações Temporárias: (Overlay) EKS/ John Baker e Equipe Rio 2016 (Ângela Ferreira, Ana Paula Loreto, Bárbara Fernandes, Flavia São Thiago, Izabela Hasek, Miguel Ciavarella e Patrícia Dias)
Produção Gráfica:  (Coordenação BCMF)
Renderização: Casa Digital (Felipe Coutinho e equipe)
Arte Final:  Matiz (Fernando Coutinho e equipe)
Modelos 3D: (Sketch-up) Equipe B – Fernando Pacheco do Nascimento e Leandro do Santos Magalhães e equipe (Fernanda Albert Saliba, Francielle Evelyn Mendes Gomes e Luisa Soares da Cunha Guimarães)
Infografia: (Coordenação Rio2016) André Maya Monteiro, Luiza Kramer e Daniel Bokelman
Maquetes:  Adhemir Fogassa Maquetes
Status: Construído

Esse site usa cookies para fornecer a funcionalidade necessária do site, melhorar sua experiência e analisar nosso tráfego.

Saiba mais