Bem-vindo.

Colégio Bernoulli Vale do Sereno

A BCMF Arquitetos assina mais um projeto para o grupo Bernoulli Educação em Minas Gerais, localizado no Vale do Sereno, em Nova Lima, na região metropolitana de Belo Horizonte. A unidade receberá estudantes de ambas as cidades e proximidades, desde o ensino infantil ao ensino médio.

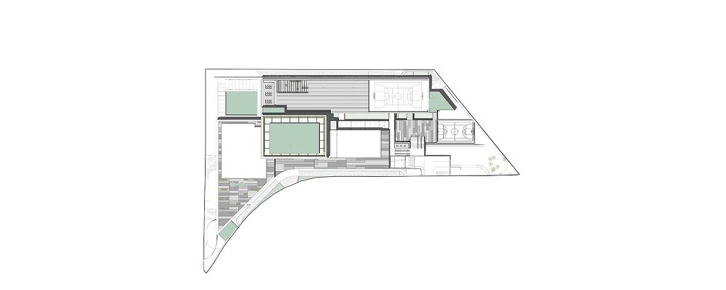
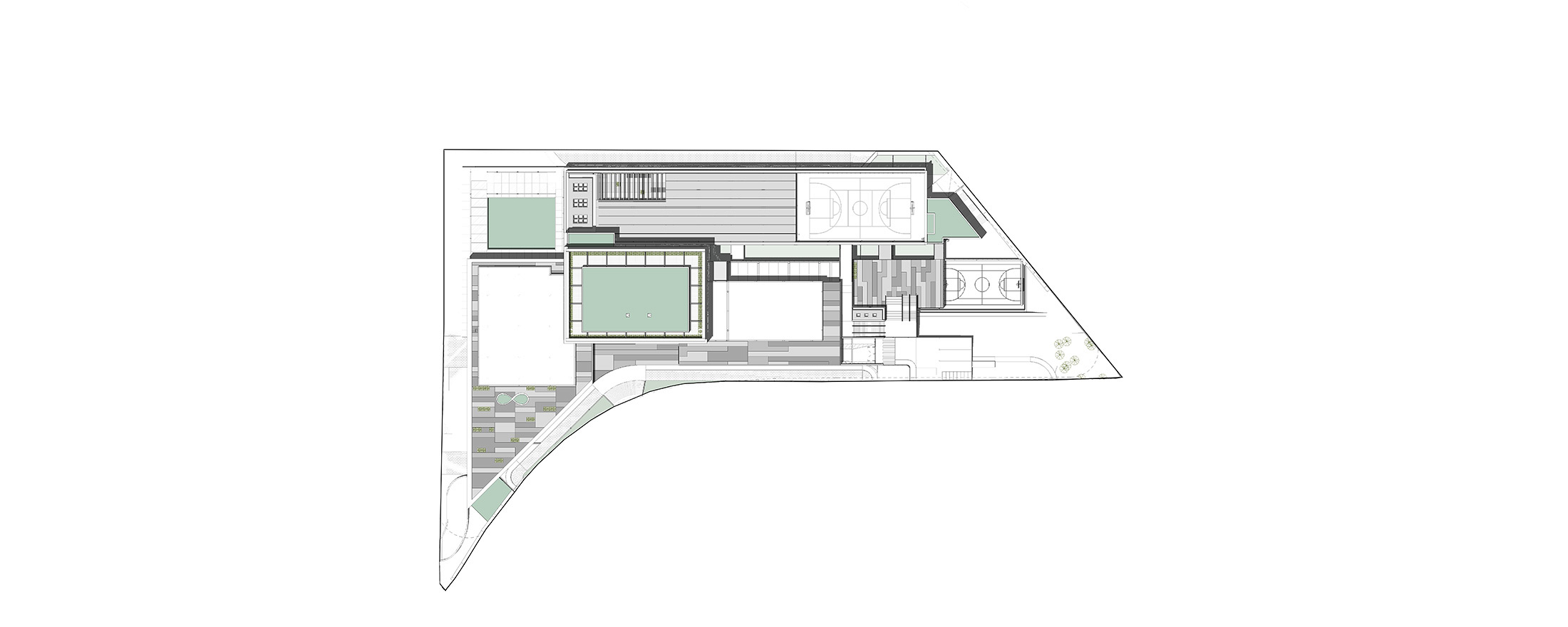
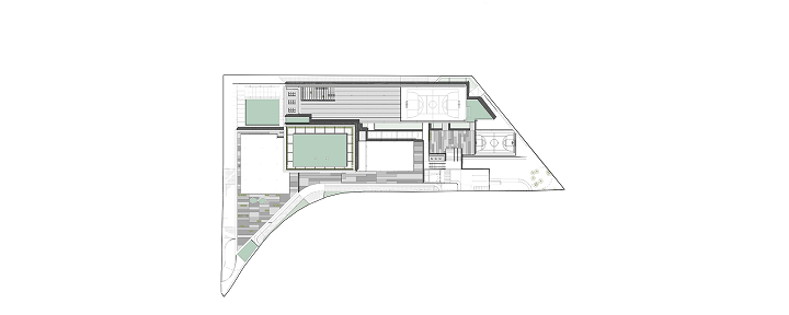
A nova escola terá cerca de 40.000 m² e contemplará espaços espetaculares para esportes, arte, música, maker, cozinha pedagógica, laboratórios e teatro, além de soluções para adequar a estrutura e as ocupações às questões de mobilidade, como horários diferentes de entrada e saída de alunos, para diluição da circulação de automóveis no entorno. Contará , também, com vagas para veículos de transporte escolar, drives de embarque e desembarque de estudantes, carros de aplicativo e staff para apoio logístico.

O prédio, projetado para ser tecnológico e sustentável, possui uma infraestrutura moderna e funcional. Para seguir o conceito de construção consciente e alinhar ao compromisso do Bernoulli com a prática de sustentabilidade, os espaços terão ventilação natural do ambiente e aproveitamento de luz natural visando reduzir os impactos à natureza, melhorar a eficiência energética e promover conforto térmico. 

(Texto adaptado da Notícia “Bernoulli chega a Nova Lima em 2025” do site Diário Do Comércio por Thyago Henrique) 

Bernoulli Vale do Sereno Projeto Arquitetônico Executivo

Projeto: Bernoulli Vale do Sereno
Localização: Nova Lima, MG
Ano: 2018
Área: 36.910,35 m²
Arquitetura: BCMF Arquitetos
Autores: Bruno Campos, Marcelo Fontes e Silvio Todeschi
Equipe: Júlia Hardy, Raquel Duarte (Coordenação), Paula (Planejamento), Patrícia Campos, Sávio Oliveira, Júlia Fleury, Maria Clara Sales, Elora Abritta, Maria Carolina, Marcos Sales, Pedro Leão, Lucas Moreira, Lucas Fakuda, Mariana Lima, Octavio Penna, Vivian Lopes, Carolina Cruz, Caio Nepomuceno
Comunicação Visual, Sinalização, Ambientação: Hardy Design
Status: Projeto
Gerenciamento dos Projetos e Obra: Três Pontos Gerenciamento de Obras Ltda
Elaboração dos Estudos Técnicos da Flora Local/ Paisagismo/ Drenagem: UMA Gestão de Projetos
Elaboração dos Estudos Técnicos de Impacto de Trânsito: BETA Engenharia e Arquitetura
Elaboração dos Projetos de Instalações Complementares: Projelet/ Ecom – Projeto de Sistemas Prediais Ltda
Elaboração dos Estudos e Projetos Geotécnicos: Consulgeo – Consultoria e Projetos Geotécnicos
Elaboração dos Projetos de Fundação Superficial e Estrutural: Bedê Engenharia
Elaboração do Projeto de Climatização: Climatizar Engenharia Térmica e Automação
Elaboração Projeto de Esquadria: BM Consultoria em Consultoria Ltda
Elaboração Projeto de Acústica: Oppus Acústica Ltda
Elaboração Projeto de Iluminação: Atiaîa Lighting Design
Consultoria para Elaboração de Projetos – Sistemas Eletrônicos: SOMITEC Sociedade de Montagem e Instalações Técnicas Ltda
Elaboração de Projeto de Sonorização: Schneider & Vilkn Audio Ltda
Elaboração de Projeto de Mecânica e Iluminação Cênica de Teatro: RPP Criação e Produção Ltda
Elaboração de Projeto de Programa de Recebimento e Controle de Efluentes Não Domésticos – Precend: CNT Ambiental Equipamentos, Produtos e Serviços Ltda
Consultoria em Eficiência Energética e Sustentabilidade: ARES Eficiência Energética e Sustentabilidade Ltda
Elaboração de Projeto de Impermeabilização: Firmino Siqueira Consultores Associados Ltda
Elaboração de Projeto de Drenagem Superficial: Consulgeo – Consultoria e Projetos Geotécnicos
Consultoria da Estação de Tratamento de Efluentes: Águas Engenharia Ltda
Execução das Obras: Construtora Caparaó S/ A

Esse site usa cookies para fornecer a funcionalidade necessária do site, melhorar sua experiência e analisar nosso tráfego.

Saiba mais