Bem-vindo.

Colégio Bernoulli Salvador

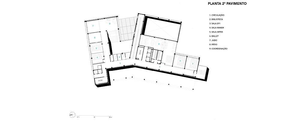
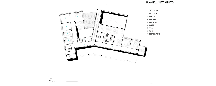
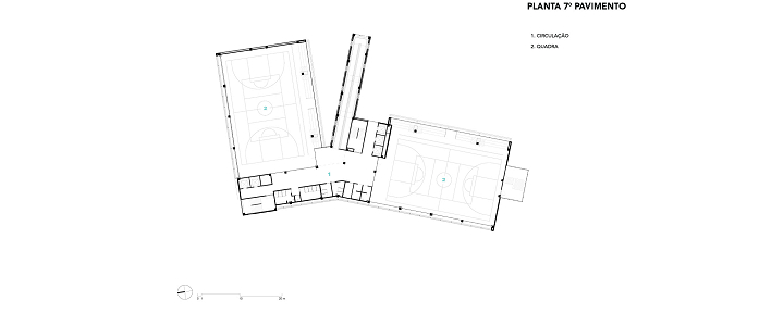
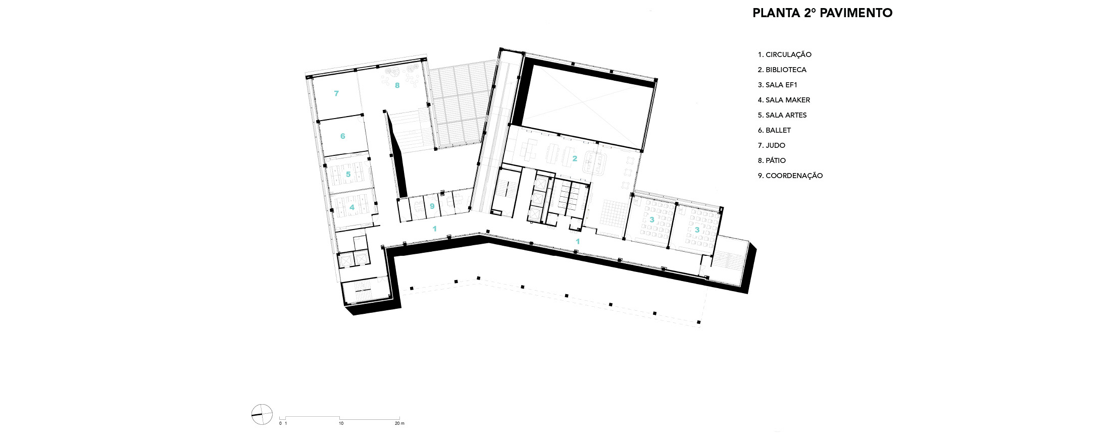
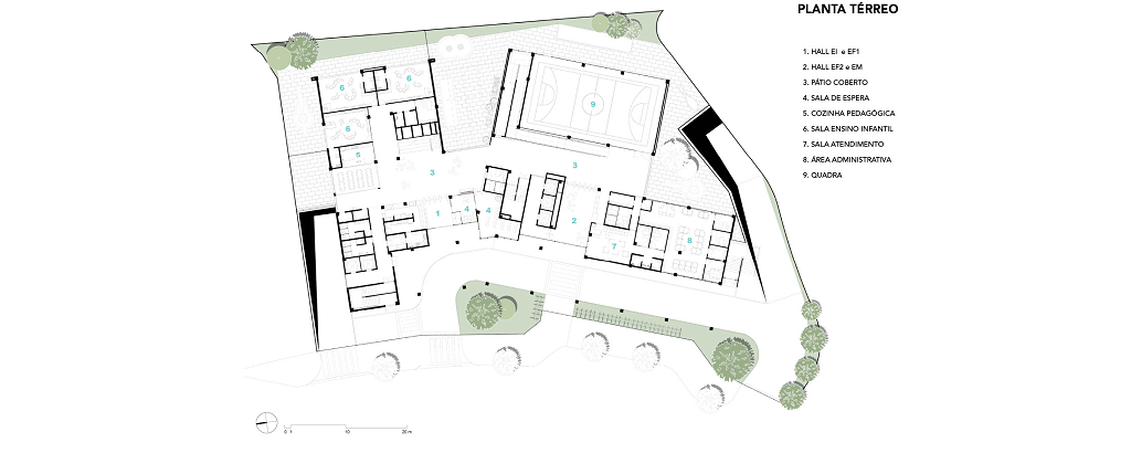
A modularidade e a flexibilidade como uma virtude essencial dos espaços de ensino O novo projeto do Colégio Bernoulli, assinado pela BCMF Arquitetos, está situado em Salvador, Bahia, uma região rica em tradição, história e cultura, com exuberante paisagem natural. A instituição já está em funcionamento, planejada para atender mais de 1.600 alunos, desde a Educação Infantil até o Ensino Médio, servindo tanto os moradores do bairro quanto estudantes de toda a capital e arredores. A infraestrutura do colégio é abrangente, contando com pátios, ginásios e salas para artes, música, espaços maker, teatro, cozinha e horta pedagógica, promovendo um maior engajamento dos alunos em seu aprendizado. A escola tem 16.000 m² e está localizada no bairro Caminho das Árvores, na Alameda das Catabas, uma área nobre da cidade. Com aproximadamente 4.200 m², o terreno é praticamente plano e está em um ponto elevado, oferecendo amplas vistas para o leste, de onde se pode apreciar o skyline de Salvador. A geometria irregular do lote, em formato trapezoidal, induziu fortemente a implantação do projeto. A composição volumétrica é formada por dois blocos principais ortogonais de sete andares, um ao norte e outro ao sul, dispostos em um ângulo de 20 graus para acompanhar a curva da Alameda, abrindo-se para a paisagem a leste. O Bloco Norte, com cerca de 20 m de frente por 40 m de profundidade, abriga salas de aula e atividades para os Ensinos Infantil, Fundamental 1 e 2, além de áreas de apoio e recreação. O Bloco Sul é subdividido em dois blocos escalonados, contendo salas de aula, quadra coberta, espaços administrativos, biblioteca, auditório e áreas recreativas, sendo os conectados por rampas que integram todos os pavimentos.

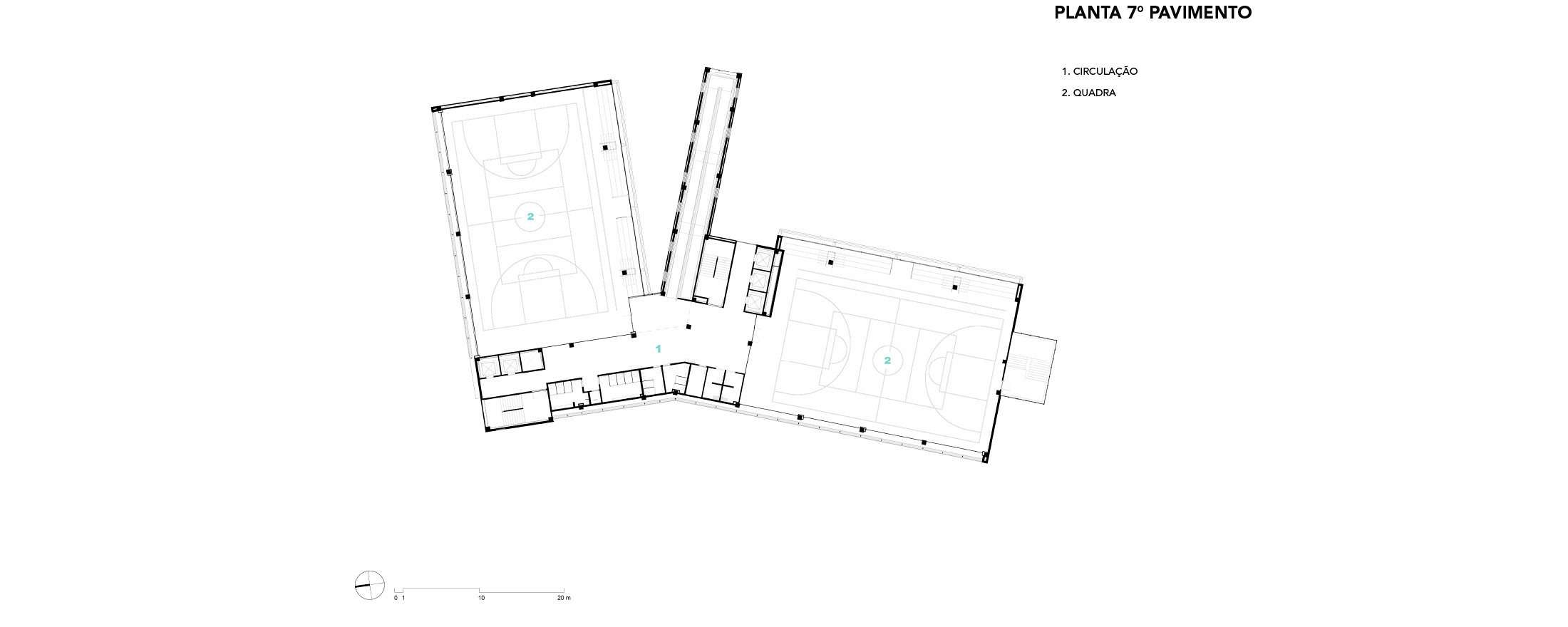
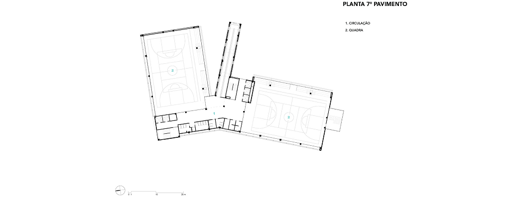
A modularidade é uma característica essencial que permite flexibilidade no uso dos espaços ao longo do tempo. A estrutura pré-fabricada em concreto possui módulos de 7,5 m, estendendo-se ao subsolo para comportar 127 vagas de garagem. No sétimo pavimento de ambos os blocos, há quadras poliesportivas cobertas, com pé-direito generoso, completando a infraestrutura. Vazios estratégicos nas fachadas enriquecem a experiência espacial e conectam os andares por meio de "escadas-arquibancadas", que também servem como áreas de descompressão e recreação. Espaços de circulação e áreas "residuais" entre blocos funcionais são projetados para usos diversos e encontros imprevistos, permitindo uma apropriação flexível do espaço.


A sustentabilidade é uma premissa essencial em projetos contemporâneos. A boa arquitetura sempre se preocupou com eficiência energética, conforto ambiental e uso adequado de materiais. Neste caso, a vista deslumbrante exige permeabilidade visual, mas também requer brises, cuja orientação foi calculada para minimizar a incidência solar e o ofuscamento em espaços como salas de aula e ginásios, contribuindo para a economia de energia (luz artificial e climatização). As instalações elétricas, hidráulicas, de ar-condicionado e acústicas são expostas, como em uma indústria, facilitando manutenção e adaptação a futuros usos, além de integrarem a ambientação e sinalização da escola, variando em paleta cromática conforme os andares.


Para traduzir os valores do colégio de forma visual e criar espaços que estimulem o aprendizado, o projeto de ambientação e sinalização utiliza cores, padrões gráficos e soluções modulares que representam a transformação e evolução contínua do aluno: a cada troca de ano, corresponde uma troca de cor e de sistema de painéis, que não são apenas decorativos, mas também educativos. Cada andar é identificado por uma cor específica, acompanhada por padrões gráficos que exploram o potencial técnico, humano e abstrato da educação, compostos por grafismos geométricos, ícones simbólicos e elementos tipográficos. Os grafismos geométricos são utilizados nos corredores e serviços pedagógicos, adaptáveis a diversos tamanhos. Cada andar tem seu próprio padrão de grafismos, que, por serem modulares, permitem múltiplas composições. O sistema visual inclui ícones simbólicos e tipográficos, especialmente nas áreas esportivas. A cultura local também ganha destaque no sistema visual, trazendo símbolos da cidade de Salvador. A sinalização foi projetada para ser facilmente atualizada, potencializando a flexibilidade no ambiente escolar, traduzindo os valores do Colégio e celebrando a identidade local.

 

Quanto à materialidade, os volumes apresentam tratamentos equivalentes de acordo com suas funções, utilizando concreto aparente, vidro, tela metálica expandida e brises, que regulam a transparência entre interior e exterior. Terraços e espaços externos resultam da articulação dos volumes e da topografia. Os demais acabamentos de superfícies verticais e horizontais seguem a mesma paleta cromática da comunicação visual, que transita entre cores frias e quentes, refletindo a evolução dos alunos ao longo dos anos.


Não há dúvida que a arquitetura desempenha um papel crucial na dinâmica social dos alunos, influenciando suas interações, comunicações e a forma como se relacionam com o processo educativo. Nesse contexto, o Colégio Bernoulli exemplifica como o design pode impactar positivamente essas relações. Com unidades em Belo Horizonte, Nova Lima, Salvador e, em breve, em São Paulo, buscamos criar um repertório formal de elementos arquitetônicos que define uma identidade própria para a instituição, sendo adaptável às características específicas de cada local. Essa abordagem resulta em uma identidade coesa em termos de imagem e operação, um conceito único com pitadas de tempero local.


O projeto do Bernoulli Salvador, desenhado a partir de um sistema construtivo industrializado simples e modulado, mas com rica espacialidade e ambiência, pretende estabelecer um novo paradigma para edifícios educacionais na cidade, valorizando a paisagem local, a vizinhança e a diversidade de espaços internos e externos, estimulando experiências pedagógicas além das salas de aula.

Bernoulli Salvador Projeto Arquitetônico Executivo

Projeto: Bernoulli Salvador
Localização: Salvador, Bahia
Ano: 2020-2024
Área: 16.000m²
Arquitetura:
BCMF Arquitetos: Bruno Campos, Marcelo Fontes e Silvio Todeschi (autores)
Raquel Duarte, Maria Carolina, Wallison Caetano, Thais Cedrolla, Caio Nepomuceno, Sávio Oliveira, Octávio Penna, Maria Clara Sales, Marina Penso, Patrícia Campos (equipe)
Ambientação e Sinalização: Hardy Design
Projetos Estruturais: Antônio Belitardo Engenharia
Implantação: Terreno Legal
Estudos de Impacto de Trânsito: TTC
Instalações Complementares: Facilitas (VCM Engenharia)
Fundação e Contenção: Geotec
Estrutura Metálica: CGA
Climatização: MAS (ETP Engenharia)
Esquadria: BM Consultoria em Consultoria Ltda
Consultoria Ambiental: Ekosocial
Acústica: Audium
Iluminação: Atiaîa Lighting Design
Sistemas Eletrônicos: SOMITEC
Sonorização: Audium Eficiência
Energética e Sustentabilidade: ARES
Impermeabilização: Firmino Siqueira Consultores Associados Ltda
Execução das Obras: Civil Construtora
Fotografia: Jomar Bragança e Manuel Sá
Status: Construído (2024)

Esse site usa cookies para fornecer a funcionalidade necessária do site, melhorar sua experiência e analisar nosso tráfego.

Saiba mais