Bem-vindo.

Retrofit Edifício Maranhão

O projeto de retrofit do Edifício Maranhão propõe a requalificação de um importante ícone da arquitetura art déco de Belo Horizonte, localizado no coração do centro da cidade, transformando áreas comerciais subutilizadas em unidades residenciais contemporâneas. A intervenção parte do respeito absoluto ao valor histórico e arquitetônico do edifício, preservando seus elementos originais e sua identidade, ao mesmo tempo em que introduz adaptações pontuais para atender às exigências atuais de conforto, segurança e uso. Mais do que uma transformação funcional, o projeto se insere como uma estratégia de revitalização urbana e sustentabilidade, reafirmando o potencial do patrimônio construído como agente ativo na renovação dos centros históricos.

Retrofit Edifício Maranhão

A Importância do Retrofit de Edifícios Comerciais Subutilizados: Revitalizando Centros Urbanos e Promovendo Sustentabilidade

Nos últimos anos, a crescente urbanização e o desenvolvimento das cidades levaram à construção de inúmeros edifícios comerciais nas áreas centrais das metrópoles. Contudo, muitos desses edifícios foram abandonados ao longo do tempo, resultando em espaços subutilizados e em degradação. A prática do “retrofit” – que consiste na modernização e adaptação de edificações antigas para atender a novas demandas – surge como uma solução eficaz para a regeneração e revitalização dos centros urbanos, especialmente quando esses edifícios são transformados em residenciais.

Historicamente, as áreas centrais das grandes cidades foram o coração das atividades comerciais e sociais. No entanto, a migração de empresas para bairros periféricos, a construção de novos centros empresariais e a falta de manutenção resultaram no abandono de muitos edifícios nesses centros. Isso levou a uma paisagem urbana degradada, marcada pela insegurança, perda de patrimônio histórico e desperdício de recursos.

Transformar edifícios comerciais abandonados em residenciais pode mudar drasticamente esse cenário. Diferente de uma simples reforma, o retrofit busca renovar edifícios antigos, adaptando-os às normas atuais de segurança, conforto e eficiência energética, sem descaracterizar sua estrutura original. Essa prática não apenas melhora a funcionalidade dos edifícios, mas também os torna adequados para novas formas de uso.

A transformação de edifícios comerciais em residenciais traz inúmeros benefícios sociais. Um dos principais é a revitalização urbana. A renovação desses edifícios torna as áreas centrais mais atraentes para moradores e visitantes. Quando esses espaços são convertidos em residências, há um aumento na população residente, o que traz movimento constante e maior segurança à região. Novos moradores estimulam o comércio local, geram demanda por serviços e melhoram a qualidade de vida, promovendo um renascimento econômico e social.

Além disso, o retrofit transforma espaços frequentemente associados à criminalidade e insegurança em locais seguros e habitáveis. Isso melhora a qualidade de vida dos moradores e frequentadores da região. A prática também preserva o patrimônio histórico, mantendo viva a história e a identidade cultural da cidade.

Do ponto de vista da sustentabilidade, o retrofit oferece vantagens significativas. Edifícios antigos, geralmente ineficientes energeticamente, podem ser modernizados com tecnologias como isolamento térmico, sistemas de iluminação eficiente e fontes de energia renovável, reduzindo o consumo de energia e as emissões de carbono. Renovar edifícios existentes evita a demolição e a consequente geração de grandes quantidades de entulho, contribuindo para a redução de resíduos e o uso sustentável de recursos. Aproveitar edificações já existentes também diminui a necessidade de novas construções, reduzindo a expansão urbana descontrolada e preservando áreas verdes e recursos naturais.

Contudo, o retrofit enfrenta desafios. A necessidade de investimentos significativos, a complexidade das intervenções em estruturas antigas e a burocracia associada a permissões e regulamentações são obstáculos a serem superados. Políticas públicas de incentivo, parcerias público-privadas e a conscientização da sociedade são fundamentais para viabilizar esses projetos.

Em suma, o retrofit de edifícios comerciais abandonados nas áreas centrais das cidades, transformando-os em residenciais, desempenha um papel crucial na regeneração e revitalização dos centros urbanos. Além de trazer benefícios sociais, como a revitalização urbana, segurança e valorização do patrimônio histórico, essa prática promove a sustentabilidade, melhorando a eficiência energética, reduzindo resíduos e otimizando o uso do solo. Investir em retrofit é investir no futuro das cidades, transformando espaços abandonados em locais vibrantes e funcionais que atendam às demandas modernas sem esquecer suas raízes históricas e culturais.

Ed. Maranhão

Rua dos Tupinambás, 360 – Centro, Belo Horizonte, MG

O Edifício Maranhão, localizado na Rua dos Tupinambás, em Belo Horizonte, é um ícone da arquitetura da cidade, construído entre 1946 e 1947 em estilo art déco. Projetado por Raphael Hardy Filho, o prédio foi inaugurado em 1948 e é um exemplar significativo da transição entre o art déco e o protomodernismo na capital mineira. Atualmente encontra-se impecavelmente preservado pelos proprietários, mas vazio e subutilizado com áreas comerciais.

Situado em um trecho tranquilo da rua, entre as avenidas Espírito Santo e Rio de Janeiro, de frente para o Cine-Theatro Brasil Vallourec, o Edifício Maranhão oferece uma experiência única em meio ao agito da cidade, em um ponto privilegiado do centro da cidade. O local, sem circulação de ônibus e com pouco tráfego, transmite uma sensação de calmaria e isolamento, incomum para o coração de uma metrópole.

Ao adentrar o edifício, o visitante é recebido por um hall de entrada grandioso, com pé direito duplo, que exibe fotografias antigas do centro de Belo Horizonte, onde o edifício aparece em destaque. O piso e o rodapé em mármore, as paredes com bossagem e a cornija volumosa emolduram o espaço, criando uma atmosfera de imponência e elegância. Os lustres originais pendem dos tetos, completando o cenário com um toque de sobriedade.

Nos andares superiores, o hall dos elevadores e as áreas comuns preservam grande parte de sua originalidade. A única alteração significativa é o piso vinílico, instalado na década de 1960 sobre o granilite original. Os painéis e portas de madeira maciça continuam como foram concebidos, mantendo a integridade do projeto.

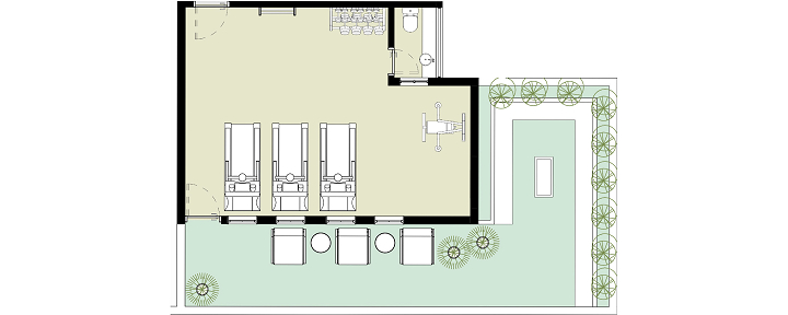
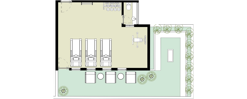
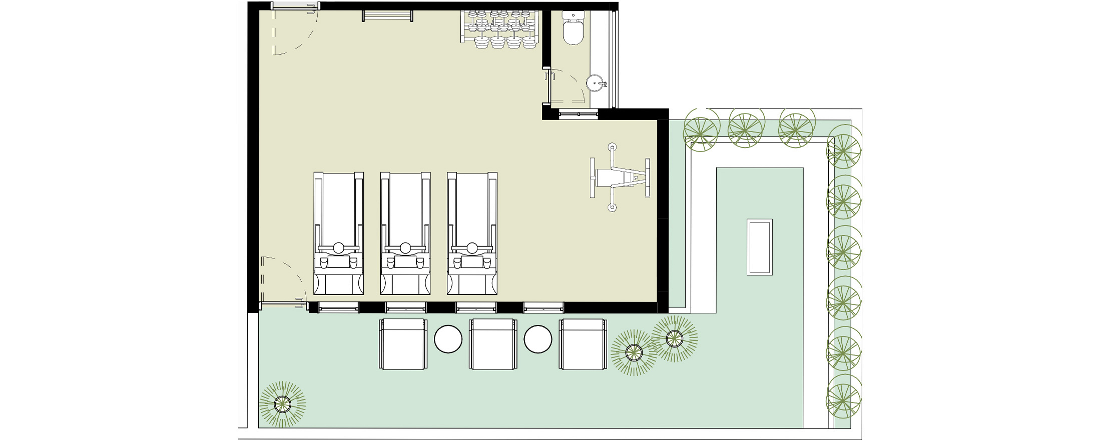
Dentro das unidades, o piso de tacos de peroba do campo e os azulejos brancos nos banheiros refletem o estilo da época. O antigo terraço, agora com piso de ladrilho sextavado vermelho, oferece espaço para a instalação de condensadoras de ar condicionado. A estrutura do edifício permite a remoção de divisórias internas, facilitando a criação de amplos conjuntos de salas.

O Edifício Maranhão encontra-se em excelente estado de conservação, graças ao cuidado meticuloso com sua manutenção. Recentemente, a Diretoria de Patrimônio Cultural e Arquivo Público de Belo Horizonte (DPAM/PBH) elogiou a preservação do imóvel.

Os andares tipo, que vão do 2º ao 12º andar, são divididos em duas alas: frontal e posterior, organizadas em torno de uma circulação em “T”. A ala frontal abriga salas menores e conjuntos de dois ou três ambientes, enquanto a ala posterior é composta por salas e conjuntos de tamanhos variados, algumas com terraços cobertos e fechados por vidro.

Nos andares superiores, a construção se estreita gradualmente, criando varandas e reduzindo o número de salas. O 13º andar, por exemplo, possui uma varanda que se abre para duas salas, enquanto o 14º andar inclui uma unidade com acesso exclusivo ao terraço. O 15º andar mantém o alinhamento com o anterior, com uma ligeira expansão na unidade final.

O Edifício Maranhão, em Belo Horizonte, é muito mais que um simples prédio; ele representa um testemunho vivo da história e da evolução arquitetônica da cidade, preservado com o respeito que merece. Nosso projeto visa realizar uma intervenção cuidadosa e sensível no objeto tombado pelo Patrimônio Histórico, com o objetivo de preservar as características originais do edifício, ao mesmo tempo em que promovemos adaptações mínimas para transformar os espaços comerciais em unidades residenciais.

Além do valor histórico e arquitetônico, esse projeto tem um significado sentimental especial para a BCMF Arquitetos. Raphael Hardy Filho, autor do projeto original, era pai do sogro de Bruno Campos, um dos sócios do escritório, e do saudoso Álvaro Hardy (Veveco). As duas filhas de Álvaro, Mariana Hardy (da Hardy Design) e Joana Hardy (do Joana Hardy Studio), seriam responsáveis pelos projetos de sinalização e ambientação, e de arquitetura de interiores, respectivamente.

Infelizmente, a implementação do projeto não avançou devido a questões contratuais com os proprietários. No entanto, permanece aqui registrado como um exemplo do que poderia ter sido um modelo exemplar de retrofit para Belo Horizonte, demonstrando o potencial de se transformar e revitalizar o patrimônio histórico da cidade.

Retrofit Edifício Maranhão Projeto

Projeto: Retrofit Edifício Maranhão


Localização: Centro, Belo Horizonte, Minas Gerais


Ano: 2022


Área: 7.000 m²


Arquitetura: BCMF Arquitetos


Autores: Bruno Campos, Marcelo Fontes e Silvio Todeschi


Equipe: Lucas Moreira, Marcos Salles, Patrícia Campos e Ana Luisa Mansur


Status: Projeto

Esse site usa cookies para fornecer a funcionalidade necessária do site, melhorar sua experiência e analisar nosso tráfego.

Saiba mais