Bem-vindo.

Habita+

Desenvolvido pela BCMF Arquitetos, o HABITA+ foi concebido como uma resposta crítica e propositiva à crise global da habitação, dentro do contexto do concurso internacional MICROHOME Kingspan Edition, promovido pela Buildner em colaboração com a Kingspan. A competição, que reuniu arquitetos e designers de mais de 115 países, desafiou os participantes a criar uma moradia modular, autossuficiente e sustentável, com área máxima de 25 m², capaz de responder de forma criativa às demandas de acessibilidade, eficiência e impacto ambiental reduzido. Partindo da realidade brasileira, onde o déficit habitacional e a desigualdade urbana permanecem desafios urgentes, o HABITA+ propõe uma alternativa à habitação padronizada e massificada que historicamente tem caracterizado programas públicos como o Minha Casa, Minha Vida. O projeto busca transformar a lógica da produção em série em uma produção adaptável em massa, capaz de oferecer moradias dignas, eficientes e sensíveis ao contexto social e ambiental de cada território. O sistema modular do HABITA+ foi desenvolvido para ser flexível, acessível e escalável, permitindo múltiplas configurações e expansões progressivas ao longo do tempo. Com infraestrutura concentrada em um núcleo técnico compacto — abrigando instalações hidráulicas, elétricas e energéticas —, a unidade facilita tanto a implantação isolada quanto a integração em conjuntos habitacionais maiores. Essa estratégia simplifica o transporte, reduz custos e permite adaptações a diferentes topografias e condições climáticas, do ambiente urbano denso ao território rural ou de emergência. O HABITA+ propõe, assim, um novo paradigma de habitação — da uniformidade produzida em massa à customização em massa — reafirmando o papel da arquitetura como agente ativo na construção de um futuro mais sustentável.

Da uniformidade produzida em massa para um modelo de moradia adaptável, sustentável e digna

Uma Crise Global, Uma Perspectiva Local
O mundo enfrenta uma crise habitacional sem precedentes — um fato que temos ouvido repetidamente. Segundo o Relatório Mundial das Cidades 2022 da ONU-Habitat, mais de 1,6 bilhão de pessoas — cerca de 20% da população mundial — vivem em moradias inadequadas. Com a expectativa de crescimento populacional global de 2,2 bilhões até 2050, a demanda por habitação acessível só tende a aumentar. Mas, embora grande parte da discussão esteja centrada em cidades como Nova York, Londres ou Hong Kong, a crise é ainda mais urgente em locais que raramente aparecem nas manchetes globais.


Na América Latina, Caribe, África Subsaariana e Sul da Ásia, o rápido crescimento populacional e a urbanização desordenada levaram à expansão de assentamentos informais, onde o acesso à infraestrutura e aos serviços básicos é extremamente limitado. Gerenciar a densidade urbana e o crescimento populacional é um dos maiores desafios de sustentabilidade enfrentados pelos países em desenvolvimento, exigindo soluções que vão além dos métodos convencionais.


A Realidade Brasileira
O Brasil não é exceção a essa tendência. Em suas maiores áreas metropolitanas — São Paulo, Rio de Janeiro, Belo Horizonte, entre outras — a combinação de escassez de terras, preços altos de imóveis e um déficit habitacional persistente forçou o mercado imobiliário a oferecer soluções habitacionais cada vez menores. Como resultado, as pessoas estão repensando sua relação com o espaço e se adaptando a moradias que desafiam os conceitos tradicionais de conforto e habitabilidade.
Ao mesmo tempo, milhões de brasileiros seguem sem acesso à moradia formal, o que leva à expansão de favelas e assentamentos informais. Essas áreas frequentemente carecem de infraestrutura essencial como saneamento, eletricidade e transporte confiável, expondo as comunidades a riscos como enchentes, deslizamentos de terra e insegurança climática. A baixa qualidade das construções e a ausência de planejamento urbano isolam ainda mais esses bairros, reforçando ciclos de exclusão e desigualdade.

Uniformidade Produzida em Massa
Ao longo dos anos, o Brasil tentou enfrentar esse desafio. Em 2009, o governo federal lançou o programa Minha Casa, Minha Vida (MCMV), uma iniciativa habitacional em larga escala que beneficiou 14,7 milhões de pessoas até 2018, com cerca de 100 bilhões de dólares em investimentos públicos. No entanto, apesar de sua abrangência, o programa foi criticado por sua abordagem rígida e padronizada, que muitas vezes priorizou a quantidade em detrimento da qualidade. Muitas unidades habitacionais foram construídas em áreas periféricas, distantes de oportunidades de emprego e infraestrutura urbana, e seus projetos repetitivos não refletiam a diversidade de famílias, climas e necessidades regionais.
Isso levanta uma questão essencial: habitações padronizadas podem realmente atender às necessidades de uma população tão diversa? Acreditamos que não. Cada família tem necessidades únicas, e cada ambiente apresenta desafios distintos. Em vez de simplificar a habitação com uma solução uniforme e repetitiva, enxergamos nela uma oportunidade de criar uma arquitetura adaptável e sensível ao contexto — que responda tanto às realidades humanas quanto às ambientais. Afinal, um lar deve ser mais do que abrigo; deve proporcionar dignidade, resiliência e oportunidade.

Uma Solução Flexível
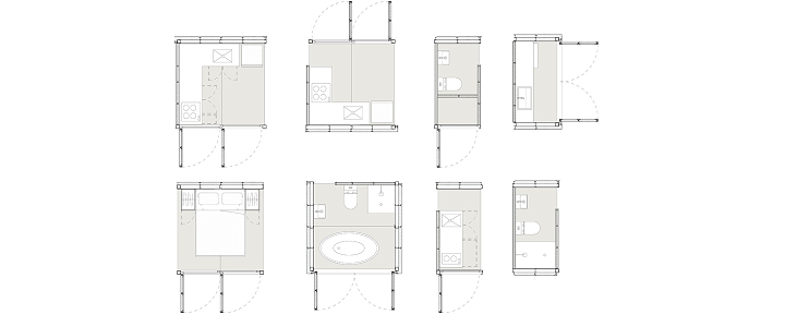
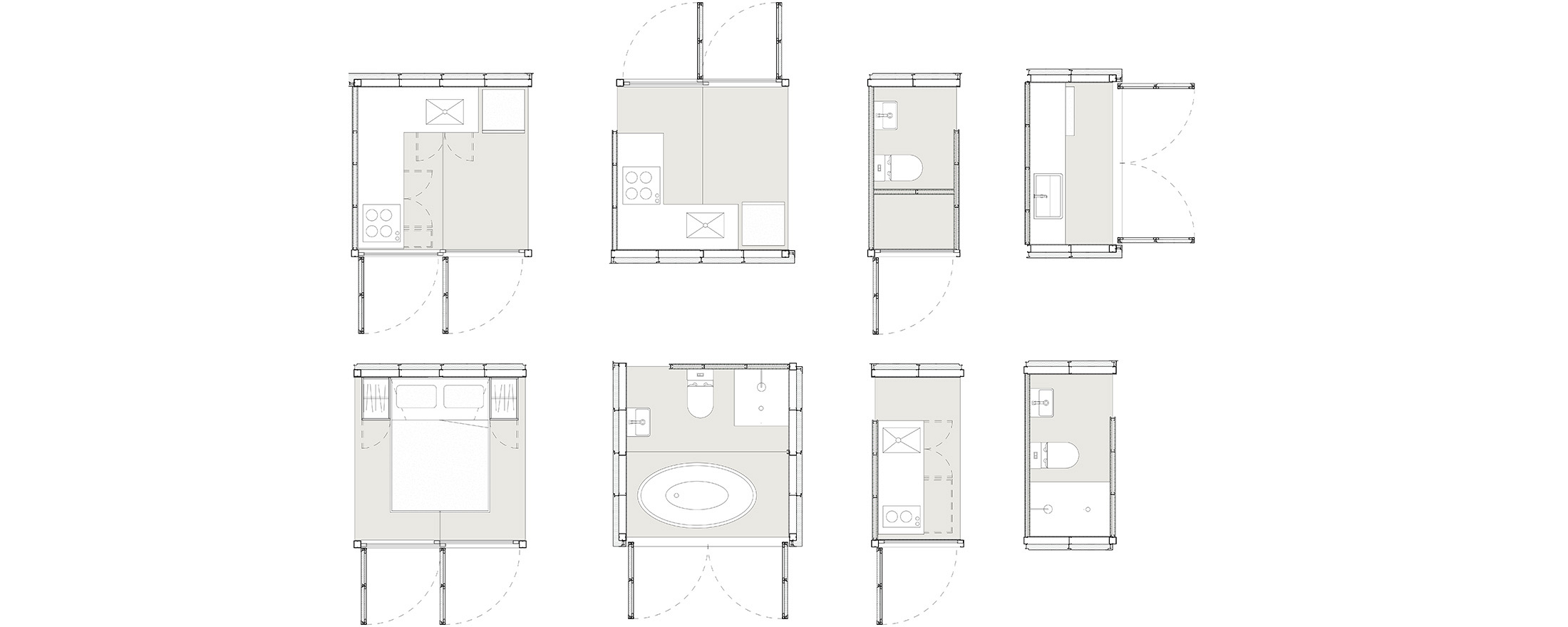
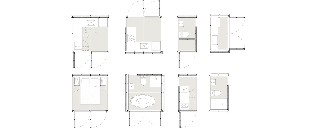
Este projeto apresenta uma alternativa flexível: uma casa pequena, acessível e, acima de tudo, adaptável. Mais do que uma solução econômica, oferece uma moradia digna, de alto desempenho, com baixa emissão de carbono e longa vida útil — projetada para crescer e evoluir com seus habitantes ao longo do tempo. Em seu cerne, esse sistema modular funciona como um conjunto de peças que podem ser montadas e configuradas conforme as necessidades específicas.

Instalações Inteligentes para Expansão Facilitada
Concentrando todas as utilidades essenciais — caixa d'água, aquecedor, quadro elétrico, baterias e encanamento — em um único lado do microimóvel, esse sistema simplifica as conexões tanto para infraestrutura urbana quanto para configurações fora da rede (off-grid). Esse núcleo de instalações centralizado facilita a manutenção, tornando reparos, atualizações e expansões mais eficientes e econômicos. Seja como unidade isolada ou parte de uma construção em crescimento, sua infraestrutura garante integração perfeita em cada etapa.

Fundações Versáteis: Pilares ou Solo Plano
A flexibilidade começa na fundação. A casa pode ser elevada sobre quatro pilares estruturais, adaptando-se facilmente a terrenos inclinados, sujeitos a enchentes ou irregulares, com mínima preparação do solo. A elevação aumenta a durabilidade, protegendo contra umidade, pragas e instabilidade do solo, além de criar espaço utilizável abaixo para armazenamento ou sistemas adicionais. Em terrenos estáveis, a unidade pode ser instalada diretamente sobre laje no solo ou até mesmo sobre estruturas já existentes, abrindo possibilidades para ambientes urbanos de alta densidade, como lajes de cobertura, estacionamentos ou espaços subutilizados.


Projeto Responsivo ao Clima
Mais do que uma casca protetora, a envoltória do edifício se adapta ativamente a diversos climas e condições do local. O telhado pode ser configurado para captar água da chuva, evitar acúmulo de neve, melhorar a ventilação ou fornecer sombra, conforme necessário. Também funciona como centro de infraestrutura, comportando painéis solares, caixas d'água e sistemas de comunicação. As paredes podem ser ajustadas para melhor desempenho térmico ou substituídas por brises para otimizar a ventilação. Essas estratégias adaptativas aumentam a sustentabilidade, reduzem a dependência de recursos externos e melhoram o conforto e a eficiência — garantindo resiliência em qualquer ambiente, de desertos áridos a regiões tropicais úmidas ou zonas frias.
Um Modelo de Vida Adaptável, Sustentável e Digno
Da produção em massa à customização em massa
Construir uma dessas casas para habitação social definitivamente não é o caminho mais barato, especialmente quando tijolo e cimento ainda apresentam custos de material e mão de obra bem mais baixos no Brasil. Mas a fabricação em massa de milhões de unidades pode reduzir drasticamente os custos de produção e, ao mesmo tempo, qualificar trabalhadores da construção civil para empregos mais seguros e melhor remunerados na indústria de manufatura. Mas há um desafio: como produzir em massa uma infinidade de tipos de moradias? A resposta está em dividi-las em um pequeno número de módulos funcionais que podem ser combinados de inúmeras formas.


01. Montagem em Fábrica
O usuário escolhe a combinação de módulos que atende às suas necessidades, que então são montados na fábrica. O tamanho total da unidade é limitado pelo método de transporte e pode ser dividido em segmentos conectáveis no local.

 

02. Transporte
A unidade, ou as unidades, podem ser transportadas por caminhão, trem, barco ou até mesmo convertidas em motorhome — o que for mais adequado para alcançar o destino final.


03. Implantação no Local
Uma vez no local, a unidade pode ser instalada sobre quatro pilares estruturais com mínima preparação do terreno, sobre laje no solo ou sobre estruturas já existentes. Unidades adicionais podem ser integradas para formar configurações mais complexas de planta.


Estabilidade, Crescimento e um Verdadeiro Sentido de Lar


01. Implantação Inicial
Como resposta rápida ao problema, as unidades fundamentais contendo a infraestrutura básica para moradia são implantadas no local. As unidades são posicionadas de forma a deixar espaço planejado para futuras expansões, natureza e áreas comunitárias.


02. Personalização
Após a emergência inicial, novas unidades são implantadas conforme as famílias começam a personalizar seus lares. Essas unidades podem conter cômodos adicionais, banheiros, uma cozinha maior, espaços de armazenamento ou um escritório em casa.


03. Uma Comunidade Dinâmica
À medida que a comunidade cresce, unidades com finalidades não residenciais são implantadas, como lojas, creches, oficinas. Ao mesmo tempo, a urbanização continua com paisagismo, parques e a criação de espaços públicos

Habita+ Concurso internacional – proposta conceitual

Projeto: Micro Home
Ano: 2025
Arquitetura: BCMF Arquitetos
Equipe: Bruno Campos, Marcelo Fontes and Silvio Todeschi (Autores), Wallison Caetano, Caio Nepomuceno, Lucas Andrade e Sofia Shcherbak

Esse site usa cookies para fornecer a funcionalidade necessária do site, melhorar sua experiência e analisar nosso tráfego.

Saiba mais