Bem-vindo.

Bar Pool Gallery

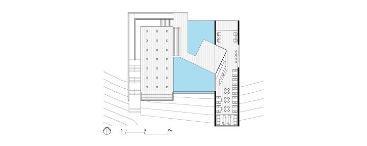
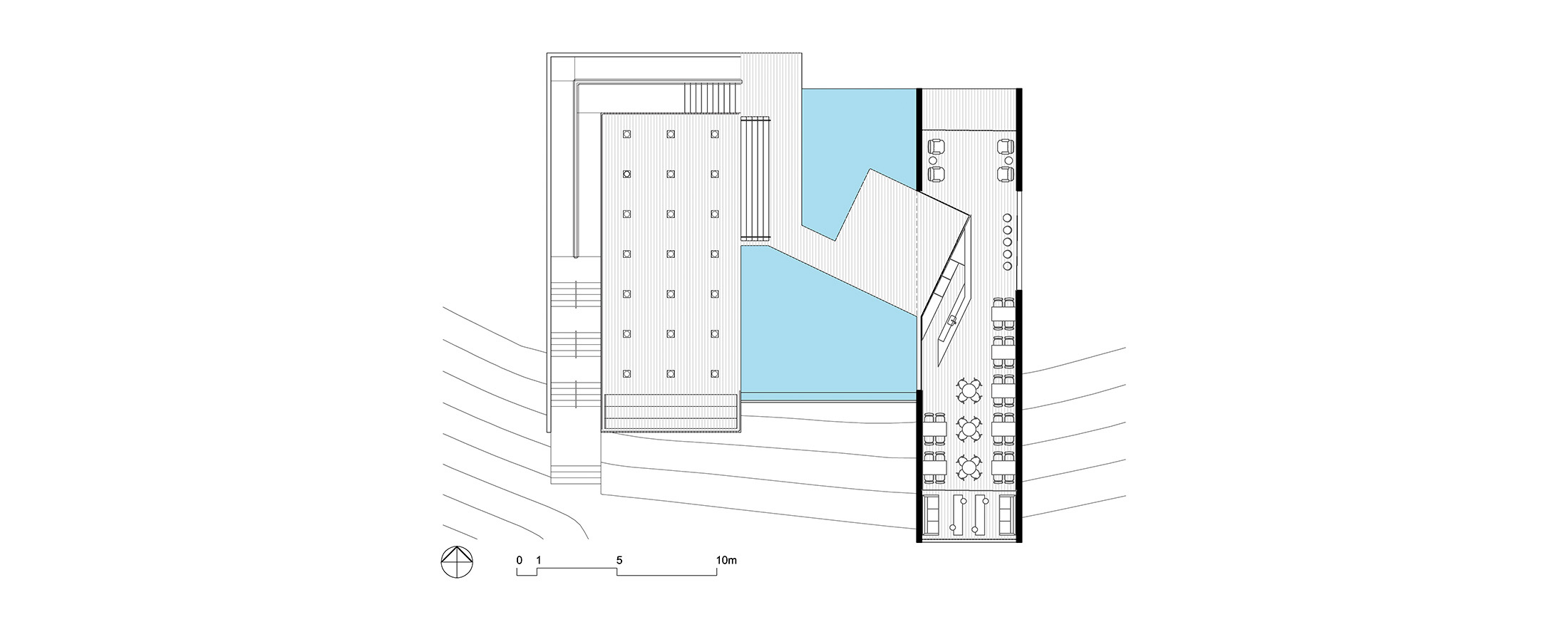
Projetado e construído em apenas três meses, o conjunto BAR/PISCINA/GALERIA foi planejado para o evento da Casa Cor MG 2014 como uma espécie de belvedere. O terreno está localizado na área central de um condomínio “refúgio de fim de semana” (Villa Gaya), uma série de bangalôs com infra-estrutura de hotel que se abrem para a paisagem deslumbrante da região de Nova Lima, a 12 km de Belo Horizonte. O projeto se resume a duas construções bem simples com um espaço aberto em comum. A BCMF ficou responsável pelo projeto do Bar e a MACh (http://www.mach.arq.br/) pelo projeto da Galeria. As áreas livres (piscina e deck) que integram as duas estruturas e programas foram projetadas a quatro mãos pelas duas empresas que, além de parceiras frequentes, dividem o mesmo espaço de trabalho desde 2010.

O Bar é basicamente um “tubo quadrado” de concreto aparente que se projeta com 10m de balanço sobre o talude do terreno, apontando para a paisagem. Em função dos vizinhos no seu entorno e da topografia acentuada, o volume horizontal do bar foi implantado perpendicularmente às curvas de nível (no sentido norte-sul, orientação oposta à dos bangalôs), tentando abrir o máximo de espaço vazio para a piscina e o deck, que se desdobra no teto da Galeria. O volume é extremamente simples (um prisma de 3 x 5 x 25 m), se contrastando com os bangalôs do condomínio pela sua geometria básica e pela austeridade no uso dos materiais.

Os espaços internos são organizados em seqüência linear, de uma ponta a outra do tubo: varanda de entrada,  área de espera, bar que se abre para fora e para dentro, e o grande salão principal que termina em uma outra varanda na ponta do balanço, enquadrando a paisagem. No teto, a modulação da laje nervurada é usada para uma série de zenitais “pixeladas” que trazem luz para o miolo do ambiente, enquanto o piso é uma extensão do deck da piscina. Os móveis simples e delicados, e a suave luz artificial das luminárias (interiores de Ana Bahia) contrastam com a rudeza do concreto, conferindo um ar despojado e informal ao ambiente.

A galeria é o único elemento arquitetônico semi-enterrado em todo o condomínio. Essa estratégia de implantação, em contraponto aos volumes dos bangalôs, permite uma visão panorâmica da paisagem e a criação de um deck elevado sobre a laje de cobertura, em extensão natural à área da piscina.

A arquitetura é definida por duas caixas de concreto aparente: uma formada pela laje do piso e paredes, outra invertida, formada pela laje de cobertura e vigas. Perfis metálicos servem de apoio entre as duas caixas, gerando uma fresta horizontal – entrada de luz que também permite visadas a partir da piscina. O percurso de acesso, em rampa, é também utilizado como elemento de fruição da paisagem, em um jogo de revelação e ocultamento, que culmina na abertura total para a vista do vale no interior do ”bunker”, em situação semelhante à do bar.

Bar Pool Gallery Projeto Arquitetônico Executivo

Projeto: Bar/Piscina/Galeria CasaCor 2014
Localização: Nova Lima, MG
Ano: 2014
Área: Bar (125m²) / Piscina (340m²) / Galeria (110m²)
Autores: BCMF Arquitetos (Bruno Campos, Marcelo Fontes e Silvio Todeschi) + MACh Arquitetos (Fernando Maculan e Mariza Machado Coelho)
Equipe: Patrícia Bueno, Vanessa Couto, Pedro Pereira, Yi Wang, Mateus Lira e Marcela Figueiredo.
Interiores: (Bar) Ana Bahia
Exibição (Galeria): Mostra Pau Ferro Cultural (curadoria Luciana Garcia Waisberg)
Projeto Estrutural: Conceptus Projetos Estruturais (Sérgio Carvalho) e Antônio Victor (Piscina)
Consultoria: Ambiente Piscinas
Render: André Resende
Fotos: Gabriel Castro e Jomar Bragança
Status: Construído

Esse site usa cookies para fornecer a funcionalidade necessária do site, melhorar sua experiência e analisar nosso tráfego.

Saiba mais