Bem-vindo.

Anexo Chrysler Building

Um arranha-céu multifuncional de 90 000 m² com usos justapostos (hotel, escola, teatros, cinemas, escritórios, espaços comerciais etc.), adjacente a um ícone histórico em um dos quarteirões mais movimentados de Manhattan. O complemento para o Chrysler Building, em Nova York (tema do último Van Allen International Student Design Competition), pretende ser uma resposta natural a um complexo de relações dimensionais, tipológicas, estruturais e espaciais, num momento de redefinição de parâmetros conceituais dos arranha-céus.

A parede
A parede de granito concentra as funções tradicionalmente resolvidas pela simples repetição de pavimentos-tipo (escritórios e indústria leve). Orientada para o East River, ela funciona como se fosse um prédio qualquer misturando-se aos outros da vizinhança, mantendo a força da imagem do topo do Chrysler e sua condição de referencial urbano. No nível dos teatros, cinema e do hall principal, a parede se abre, lembrando a mudança de funções (nesses pontos os escritórios dão lugar aos foyers). A circulação vertical da parede leva o público aos nós centrais de cada função (dos quais partem circulações independentes), assim como aos escritórios.

A estrutura multifuncional
A complexidade do programa da parte multifuncional – feita sobretudo de aço e vidro é revelada entre as duas massas de granito – a parede e o próprio Chrysler. Suspensas a 40 m do solo, as múltiplas funções são resolvidas como uma verticalização da estrutura horizontal urbana. Organizadas a partir de nós centrais públicos de atividade acessados pela circulação vertical da parede, cada função tem circulação vertical independente, assim como conexões com o Chrysler. As grandes vigas que seguram os volumes definem esses centros (nós) e conexões, a partir dos quais os usos variam do mais público ao mais privado à medida que se sobe. A setorização vertical geral também segue essa lógica
de empilhamento: acesso metrô/espaços comerciais (praça rebaixada), área cultural/entretenimento (cinema, teatro, sala de concerto), área institucional (escola), habitação (hotel).

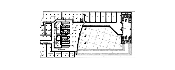
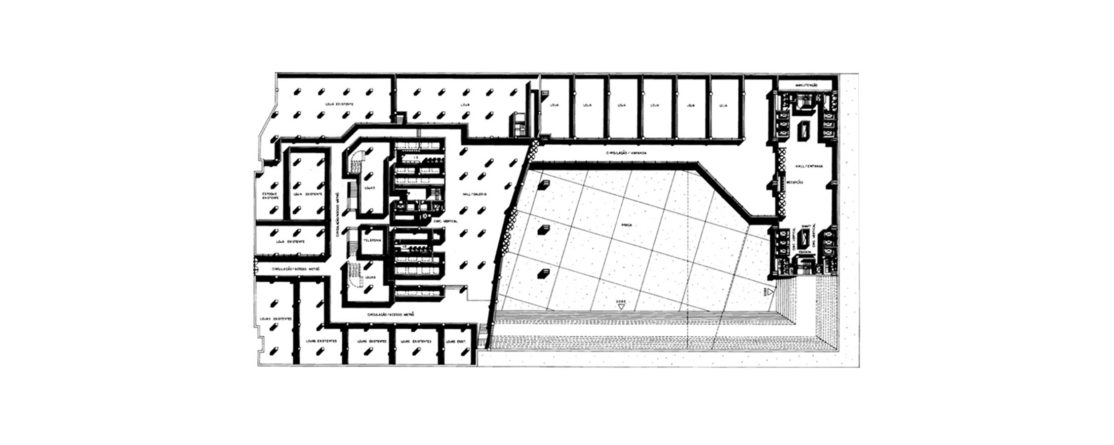
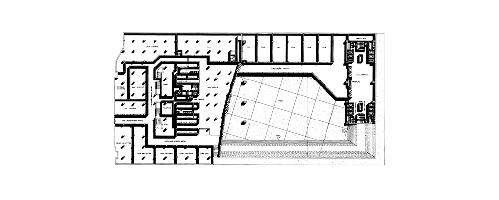
A praça
Se a parte mais importante do Chrysler é o seu topo e sua relação com o skyline, a mais significativa do seu complemento é a base e sua relação com a rua 42. O edifício suspenso do solo confere um vazio importante em uma área densamente ocupada. O espaço liberado conforma uma praça monumental que traz o Chrysler e seu complemento ao domínio público, ativando o espaço interior do quarteirão. A praça rebaixada, rodeada de espaços comerciais, comunica-se diretamente com a galeria existente no subsolo do Chrysler (que dá acesso ao metrô) e com o hall de acesso do complemento.

Anexo Chrysler Building Projeto

Projeto: Anexo para o Chrysler Building
Localização: Nova York, NY
Ano: 1994
Autor: Bruno Campos
Orientador: Gaston Oporto
Escola: Universidade Federal de Minas Gerais
Colaboradores: Renata M. Marquez, Sálvio Marquez, Silvio Todeschi, Daniel Todeschi,
Adriana Varandas, Osmar Barros, Mauricio Campomori, Hélio Chumbinho, Haroldo Campos
Fotos: Renata M. Marquez
Status: Projeto

Esse site usa cookies para fornecer a funcionalidade necessária do site, melhorar sua experiência e analisar nosso tráfego.

Saiba mais